


























a house in three parts
a house in three parts
a house in three parts
upstate new york
upstate new york
upstate new york
in-progress
in-progress
in-progress
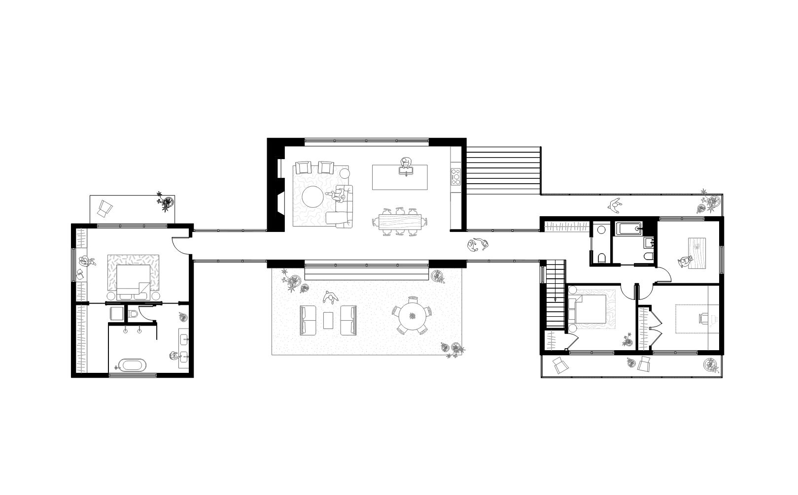
sited atop a forested hill next to an audubon sanctuary, this house sits alone in the landscape. The surrounding properties are dotted with stone walls tracing the property boundaries of 19th-century farm estates. these properties evolved to include guest houses, barns, and utilitarian structures, forming loose architectural ensembles rather than singular buildings.
this layered context informed our proposal for a contemporary farm estate, a house in three parts. a tri-form geometry differentiates programmatic functions — the barn, the farmhouse, and the extension. the positioning of the three volumes generates a sheltered rear courtyard, spatially buffered from the broader landscape.
the clients envisioned the house as a retreat from urban living, drawn to the area’s rich vernacular traditions and commitment to land conservation. they prioritized low-carbon, energy-efficient strategies and wildfire resiliency.
interior spaces are organized around biophilic design principles, emphasizing natural materials, abundant daylight, and framed views of the surrounding forest. moments of funky material expression punctuate key spaces, balancing character with restraint.
carbon footprint and energy calculations *coming soon*
sited atop a forested hill next to an audubon sanctuary, this house sits alone in the landscape. The surrounding properties are dotted with stone walls tracing the property boundaries of 19th-century farm estates. these properties evolved to include guest houses, barns, and utilitarian structures, forming loose architectural ensembles rather than singular buildings.
this layered context informed our proposal for a contemporary farm estate, a house in three parts. a tri-form geometry differentiates programmatic functions — the barn, the farmhouse, and the extension. the positioning of the three volumes generates a sheltered rear courtyard, spatially buffered from the broader landscape.
the clients envisioned the house as a retreat from urban living, drawn to the area’s rich vernacular traditions and commitment to land conservation. they prioritized low-carbon, energy-efficient strategies and wildfire resiliency.
interior spaces are organized around biophilic design principles, emphasizing natural materials, abundant daylight, and framed views of the surrounding forest. moments of funky material expression punctuate key spaces, balancing character with restraint.
carbon footprint and energy calculations *coming soon*
sited atop a forested hill next to an audubon sanctuary, this house sits alone in the landscape. The surrounding properties are dotted with stone walls tracing the property boundaries of 19th-century farm estates. these properties evolved to include guest houses, barns, and utilitarian structures, forming loose architectural ensembles rather than singular buildings.
this layered context informed our proposal for a contemporary farm estate, a house in three parts. a tri-form geometry differentiates programmatic functions — the barn, the farmhouse, and the extension. the positioning of the three volumes generates a sheltered rear courtyard, spatially buffered from the broader landscape.
the clients envisioned the house as a retreat from urban living, drawn to the area’s rich vernacular traditions and commitment to land conservation. they prioritized low-carbon, energy-efficient strategies and wildfire resiliency.
interior spaces are organized around biophilic design principles, emphasizing natural materials, abundant daylight, and framed views of the surrounding forest. moments of funky material expression punctuate key spaces, balancing character with restraint.
carbon footprint and energy calculations *coming soon*
hello@hifiarc.com
brooklyn | hudson valley
© 2026 Matthew Shufelt Architect, PLLC
hello@hifiarc.com
brooklyn | hudson valley
© 2026 Matthew Shufelt Architect, PLLC
hello@hifiarc.com
brooklyn | hudson valley
© 2026 Matthew Shufelt Architect, PLLC